Haus D
Typ: An- und Umbau eines Historischen Bauernhauses
Standort: Kinzigtal, 2020
in Kooperation mit Alexander Wolf von Studio5a
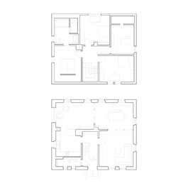
DDurch die Öffung des ursprünglich kleinzellig strukturierten Erdgeschosses, wurde eine Raumsequenz geschaffen, in der alle Wohnfunktionen verknüpft sind. Das beim Umbau vorgefundene Fachwerk wurde aufgearbeitet und in Szene gesetzt. Ein großzügiges Sitzfenster schafft die Verbindung zum Garten mit seinem Obstbaumbestand. Das Obergeschoss beinhaltet die Privaträume, welche durch maßgefertigte Schreinermöbel gegliedert werden.



Grundrisse nach und vor dem Umbau


Haus D
Typ: An- und Umbau eines Historischen Bauernhauses
Standort: Kinzigtal, 2020
in Kooperation mit Alexander Wolf von Studio5a
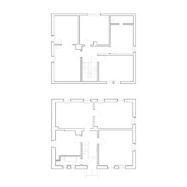
DDurch die Öffung des ursprünglich kleinzellig strukturierten Erdgeschosses, wurde eine Raumsequenz geschaffen, in der alle Wohnfunktionen verknüpft sind. Das beim Umbau vorgefundene Fachwerk wurde aufgearbeitet und in Szene gesetzt. Ein großzügiges Sitzfenster schafft die Verbindung zum Garten mit seinem Obstbaumbestand. Das Obergeschoss beinhaltet die Privaträume, welche durch maßgefertigte Schreinermöbel gegliedert werden.





